Location
Southbank, London
Client
Southnkank Centre
Outcome
Escape it.
Sector
Hospitality & Theatre
Culture & Community Hub
Atmosphere
Coffee House
Interchange of ideas, thoughts, and taste.
Hygge
Feelings of warmth and coziness.
Dome of Discovery
Innovation and progress. Exhibitions and performances.
Circular Motion
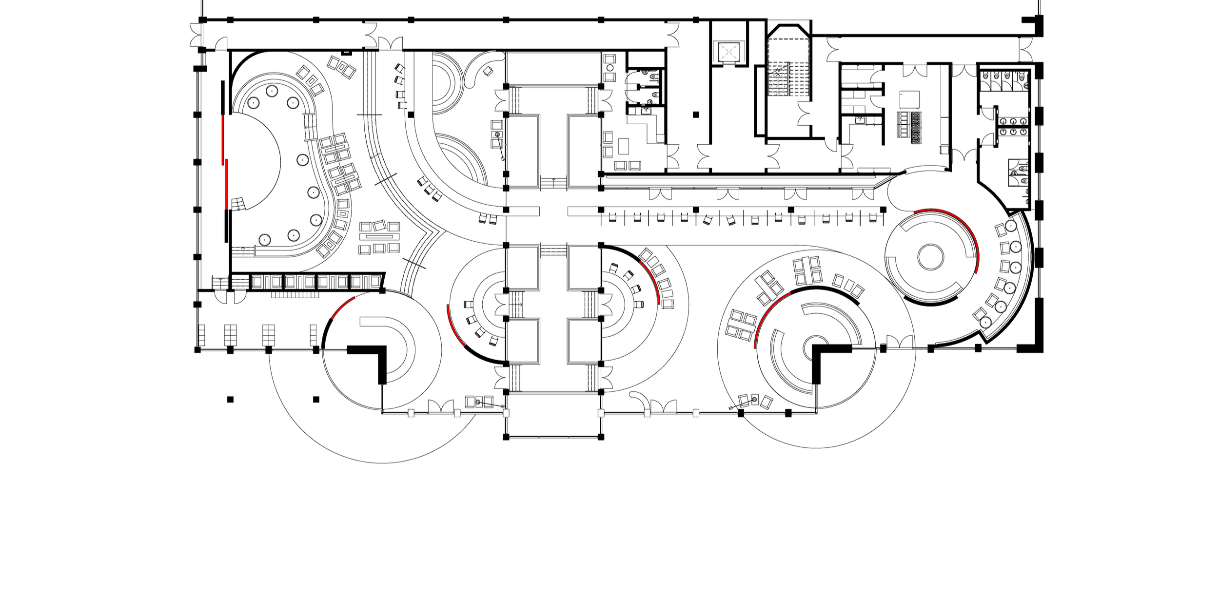
The Escape It project involved the design and development of a ‘Third Space,’ a high-end hospitality interior that prioritised user experience, spatial flow, and material expression. Led by Arek Kosacki, the project progressed from the initial concept to detailed design, which included crafting spatial layouts, mood boards, and presentation visuals that conveyed a cohesive narrative.
Extensive research into materials, precedent studies, and client aspirations informed an outcome that balanced aesthetic ambition with practical requirements. In collaboration with the broader design team and external consultants, technical drawings were created, and key packages, including furniture, fixtures, and equipment (FF&E) selections and finish schedules, were coordinated.
Ongoing refinement ensured alignment with budget constraints and regulatory standards. This project exemplified a commitment to creating contextually responsive interiors that blend design innovation with practical performance.
Connection & Interception
Drawing inspiration from the ritual of camping, Escape It reimagines the hospitality lounge as a convergence of hearth, forest, bar, and theatre. Grounded in proxemic theory, the project investigates how spatial proximity shapes the atmosphere of social gatherings, particularly around an indoor fireplace. Seating is arranged to balance intimate, personal, and social distances, using timber-clad benches, moss-textured upholsteries, and soft, dappled lighting to define distinct zones.
A bespoke bar counter and cosy theatre alcove further enrich the experience, encouraging communal interaction around the warmth of the fire while ensuring individual comfort. Through careful modulation of seating density, material expression, and light, the design cultivates an immersive, emotionally engaging environment that echoes the communal spirit of camping in a refined, luxury setting.
‘‘Attempt to assign spatial characteristics to the margins.’’
— Homi J. Bhabha

